Detta kök är placerat i ett rum som tidigare fungerade som vardagsrum och som, i samband med att två lägenheter bands samman, fick en ny roll som hemmets självklara mittpunkt. Resultatet är en generös och tidlös zon för vardagens liv, snarare än en tydligt avgränsad funktion.
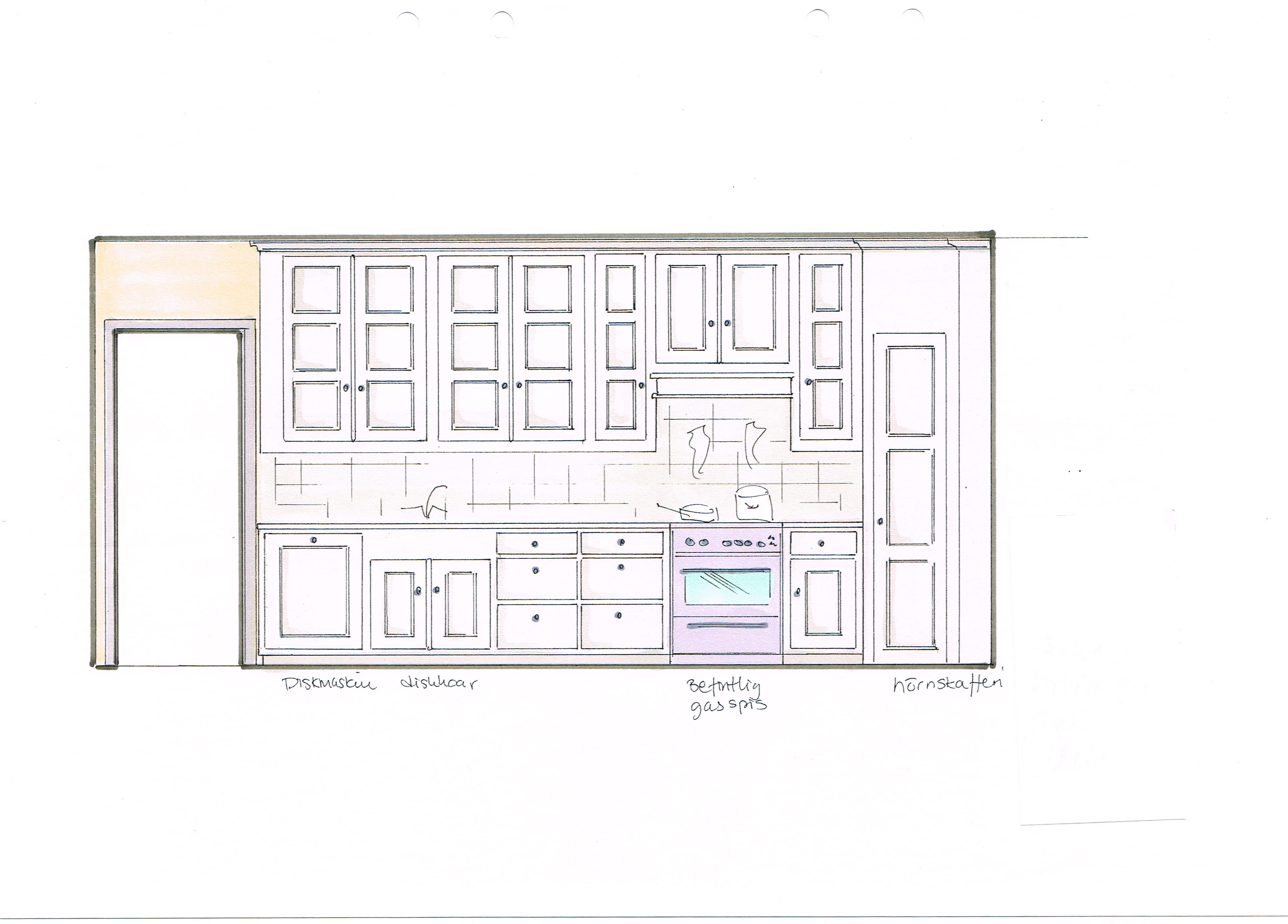
Snickerier i massiv furu är målade i NCS S‑1000N. Överskåpens dörrar är tredelade med förebild i lägenhetens originalskåp, kompletterade med överfalsande list mellan pardörrarna enligt traditionellt utförande.
Det tidigare köket i rummet intill innehöll ett platsbyggt originalskafferi, vilket togs till vara och anpassades till tvättstuga när det nya köket, med sitt hörnskafferi, uppfördes.
Bänkskivor i 40 mm carraramarmor samspelar med blandare Horus, Victoria 19.141 från Badex. Golven är original – fiskbensparkett i ek – och bidrar till rummets kontinuitet och självklarhet.
Vitvaror från Siemens



























